設計案例:
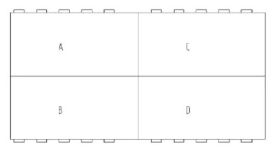
某廠房劃分為若干個防煙分區ABCD后,每個防煙分區都只有一條長邊能開窗(如防煙分區A只有一條邊可以開窗),但是可開啟外窗面積滿足防煙分區排煙要求,此情形是否可以滿足自然排煙。
處理意見:
沿建筑物的兩條對方均勻布置這條規范是針對于整個廠房,倉庫空間,若有條件時,應將自然排煙窗(口)沿建筑的兩條對邊均勻布置,對于不具備沿建筑物的兩條對邊均勻布置時,自然排煙窗(口)需滿足沿外墻均勻布置。
規范名稱及條文內容:
《建筑防煙排煙系統技術標注》第4.3.4 條:廠房、倉庫的自然排煙窗(口)設置尚應符合下列規定:
1、當設置在外墻時,自然排煙窗(口)應沿建筑物的兩條對邊均勻設置;
2、當設置在屋頂時,自然排煙窗(口)應在屋面均勻設置且宜采用自動控制方式開啟;當屋面斜度小于或等于12度時,每200平方米的建筑面積應設置相應的自然排煙窗(口),當屋面斜度大于12度時,每400平方米的建筑面積應設置相應的自然排煙窗(口)。
解析:
根據廣東省建筑工程消防設計審查疑難問題解析
2.4、按《建筑防煙排煙系統技術標準》GB 51251 第4.3.4條,廠房、倉庫的自然排煙窗(口)設置在外墻時,應沿建筑物的兩條對邊均勻設置;兩條對邊自然排煙窗(口)需均勻設置是指每個防火分區還是防煙分區,部分工業建筑兩條對邊均設有排煙窗,但因排煙口距離不滿足上述規范第4.3.2 條要求,如采用擋煙垂壁劃分不同的防煙分區,靠窗的防煙分區采用自然排煙,內區距離排煙窗較遠的采用機械排煙,對于靠窗的防煙分區只有一側設有自然排煙口,但對于整個防火分區對流仍存在,是否可行?
答:兩條對邊需均勻設置自然排煙窗(口)是指每個防火分區;當防火分區內的側墻上設置的外窗可形成對流,且需自然排煙的防煙分區滿足自然排煙條件時可以。

收藏我們
在線留言
站點地圖
全國咨詢熱線 : 
